Κρανίδι: Στα σκαριά η ανάπλαση του πάρκου
Στο Δήμο Ερμιονίδας και συγκεκριμένα στο Κρανίδι, δρομολογείται η ολική ανάπλαση του πάρκου της πόλης.
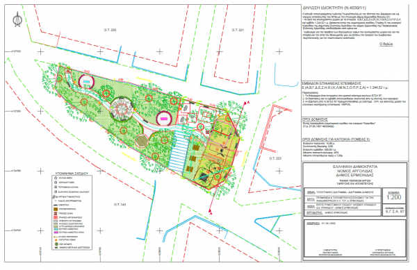
Σε τροχιά υλοποίησης μπαίνει για τον Δήμο Ερμιονίδας, η ανάπλαση του πάρκου που βρίσκεται στην περιοχή της παλαιάς πυροσβεστικής στο Κρανίδι.
Ο Δήμος Ερμιονίδας, στη συνεδρίαση της Οικονομικής Επιτροπής στις 10-03-22 προχώρησε στην έγκριση της υπ’ αριθ.: 012/2022 τεχνικής έκθεσης με τίτλο: «ΠΡΟΜΗΘΕΙΑ ΚΑΙ ΤΟΠΟΘΕΤΗΣΗ ΕΞΟΠΛΙΣΜΟΥ ΓΙΑ ΤΗΝ ΑΝΑΔΙΑΜΟΡΦΩΣΗ ΚΟΙΝΟΧΡΗΣΤΟΥ ΧΩΡΟΥ ΤΟΥ ΔΗΜΟΥ ΕΡΜΙΟΝΙΔΑΣ», με την οποία προβλέπεται η δημιουργία ενός πολυθεματικού και πολυχρηστικού χώρου βορειοανατολικά της Κοινότητας Κρανιδίου.
Στόχος της πράξης αυτής είναι η τοποθέτηση νέου και σύγχρονου αστικού εξοπλισμού, οργάνων παιδικής χαράς διεθνών ευρωπαϊκών προτύπων για την ασφαλή χρήση τους από παιδιά, οργάνων γυμναστικής για την άθληση των πολιτών, φωτιστικών σωμάτων, αρδευτικών υλικών, περιφράξεων καθώς επίσης και φυτικό υλικό που θα αναβαθμίσει το πάρκο της περιοχής.

Ενδεικτική εικόνα της πρότασης ανάπλασης στο Κρανίδι
Ο χώρος καθώς και η παιδική χαρά, έχουν σχεδιαστεί με γνώμονα την προσβασιμότητα και την χρηστικότητα και για ‘Aτοµα µε Αναπηρίες (ΑµεΑ).
Να υπενθυμίσουμε πως ο Δήμος Ερμιονίδας στις 31.05.2022, υπέβαλε την προαναφερόμενη πρόταση στο Χρηματοδοτικό Πρόγραμμα «ΔΡΑΣΕΙΣ ΠΕΡΙΒΑΛΛΟΝΤΙΚΟΥ ΙΣΟΖΥΓΙΟΥ» για τα έτη 2021-2022 του Πράσινου Ταμείου.
Το ποσό της δαπάνης ανέρχεται σε 214.263,20€ συμπεριλαμβανομένου Φ.Π.Α. 24%, ενώ η αιτούμενη χρηματοδότηση ανέρχεται στο ποσό των 170.984,00€ και το υπολειπόμενο ποσό ήτοι 43.279,20€, θα καλυφθεί από ίδιους πόρους του Δήμου, ύστερα και από την υπ’ αριθ. πρωτ. 5360/23-07-2021 Β’ Πρόσκληση Α.Δ.Α: ΨΥ5846Ψ844-Τ5Ξ στον άξονα προτεραιότητας: «ΑΣΤΙΚΗ ΑΝΑΖΩΟΓΟΝΗΣΗ & ΛΟΙΠΕΣ ΔΡΑΣΕΙΣ ΠΕΡΙΒΑΛΟΝΤΙΚΟΥ ΙΣΟΖΥΓΙΟΥ»
- «Ακριβοί στα πίτουρα, φτηνοί στο αλεύρι»: Κακουργήματα στα μπλόκα, πλημμελήματα στις υποκλοπές
- Πιερρακάκης: Τα μεγάλα αγκάθια για την ελληνική οικονομία και τι σημαίνει η εκλογή του στο Eurogroup
- Να επιστρέψει στις νίκες θέλει ο Ολυμπιακός κόντρα στη Μπαρτσελόνα
- Κυβέρνηση «Φραπέδων»: Το πραγματικό πρόβλημα είναι το δικαίωμα σιωπής που επικαλείται η Νέα Δημοκρατία για τον ΟΠΕΚΕΠΕ
- Φοινικούντα: «Δέχομαι απειλές», λέει η ανιψιά του ιδιοκτήτη – Απολογούνται σήμερα οι δύο συλληφθέντες
- Lemmy lives: Μια επική συναυλία – πάρτι αφιερωμένη στο icon του hard rock και της αλητείας
- Απείθαρχοι; Αλαζόνες; Τεμπέληδες; Η Γενιά Z αντιμετωπίζει ένα γνώριμο κύμα κριτικής στον χώρο εργασίας
- Εκδικάζεται η αίτηση αναίρεσης της Παρασκευής Τυχεροπούλου στην εκδικητική συμπεριφορά του ΟΠΕΚΕΠΕ
Ακολουθήστε το in.gr στο Google News και μάθετε πρώτοι όλες τις ειδήσεις







![Άκρως Ζωδιακό: Τα Do’s και Don’ts στα ζώδια σήμερα [Παρασκευή 12.12.2025]](https://www.in.gr/wp-content/uploads/2025/12/jake-kokot-PbDLAy38QZM-unsplash-315x220.jpg)
















































































Αριθμός Πιστοποίησης Μ.Η.Τ.232442