Αρχίζει η μεγαλύτερη ανάπλαση στην ιστορία του Αβλέμωνα Κυθήρων
Ο οικισμός Αβλέμωνας του Δήμου Κυθήρων αλλάζει ολοκληρωτικά όψη.
Βιοκλιματική ανάπλαση επιχειρείται στον οικισμό Αβλεμώνα Κυθήρων που προσβλέπει στην αισθητική και λειτουργική αναβάθμιση του, καθώς και στην μείωση του ενεργειακού αποτυπώματος.
Ειδικότερα, υπογράφτηκε από τον Δήμαρχο Κυθήρων, Ευστράτιο Χαρχαλάκη, η σύμβαση για την εκτέλεση του έργου «Συνολική ανάπλαση του οικισμού Αβλεμώνα» προϋπολογισμού μελέτης 4.000.000,00€ (συμπεριλαμβανομένου Φ.Π.Α.) που χρηματοδοτείται εξολοκλήρου με πόρους του Ταμείου Ανάκαμψης και Ανθεκτικότητας «ΕΛΛΑΔΑ 2.0».
Το έργο αφορά στη βιοκλιματική ανάπλαση του οικισμού Αβλέμωνα Κυθήρων, στην ανάδειξη του φυσικού του κάλλους και την αποκατάσταση και ενίσχυση των υφιστάμενων υποδομών.
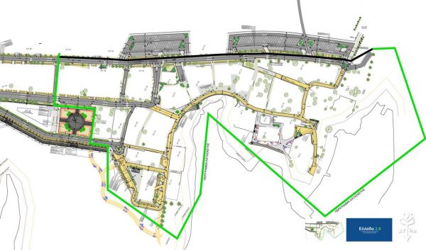
Χώροι αναψυχής και περιπάτου
Το κύριο αντικείμενο του έργου αφορά στη διαμόρφωση χώρων περιπάτου και αναψυχής αλλά και στην αισθητική και λειτουργική αναβάθμιση του οικισμού, σε αρμονία με υφιστάμενες κατασκευές και με σεβασμό στο ιδιαίτερο μορφολογικό ύφος των Κυθήρων. Στοιχεία που λειτουργούν ήδη ως τοπόσημα, όπως το Καστέλο και οι παραλιακές διαμορφώσεις περιπάτου, ενώνονται με τις νέες. Δημιουργούνται ζώνες κίνησης ποδηλάτου, υποδομές για φόρτιση ηλεκτρικών οχημάτων καθώς και χώροι στάθμευσης οχημάτων. Πιο συγκεκριμένα, στο φυσικό αντικείμενο του έργου, περιλαμβάνονται:
- Αδιαμόρφωτη σήμερα έκταση 17.190τ.μ., Νότια και Ανατολικά του πυκνοδομημένου ιστού του οικισμού με έμφαση σε όλο το παραλιακό μέτωπο του Αβλέμωνα, με διαμορφώσεις χώρων αναψυχής και περιπάτου.
- Οδοποιία, πεζοδρόμηση και ηλεκτροφωτισμό κυρίως Νότια και Ανατολικά του πυκνοδομημένου ιστού του οικισμού με έμφαση σε όλο το παραλιακό μέτωπο του Αβλέμωνα.
Η μελέτη σύμφωνα με την ανακοίνωση του Δήμου Κυθήρων, περιέχει όλες τις απαραίτητες προβλέψεις (ήπιες κλίσεις, ράμπες, οδηγό όδευσης ατόμων με προβλήματα όρασης) για αύξηση της προσβασιμότητας στην περιοχή παρέμβασης από άτομα με ειδικές ανάγκες, ηλικιωμένους και παιδιά, με σκοπό την άνετη και ασφαλή μετακίνησή τους στους κοινόχρηστους χώρους.
Οι προβλεπόμενες εργασίες ανάπλασης αφορούν:

- Διαμόρφωση ζωνών κίνησης πεζών – ποδηλάτων
- Διαμόρφωση κυκλοφορίας οχημάτων
- Διαμόρφωση χώρων στάθμευσης
- Διαμόρφωση σημείων ανάπαυσης με πέργκολες
- Φύτευση
- Μπάρες διακοπής κυκλοφορίας
- Τοποθέτηση κάδων απορριμμάτων και συστημάτων υπόγειων κάδων με σύστημα μηχανισμού ανύψωσης και εφαρμογή παρακολούθησης πληρότητας
- Τοποθέτηση σταθμών ασφάλισης δίκυκλων – μπάρες ποδηλάτων και φόρτισης ηλεκτρικών ποδηλάτων
- Τοποθέτηση σταθμών φόρτισης ηλεκτρικών οχημάτων
- Υποδομές Ηλεκτροφωτισμού και υπογειοποιήσεις δικτύων ΟΚΩ
- Πλήρη αστικό εξοπλισμό
- Νέα δίκτυα ύδρευσης
Το έργο έχει ενταχθεί στο πρόγραμμα «ΠΑΡΕΜΒΑΣΕΙΣ ΜΕ ΣΤΟΧΟ ΤΗΝ ΒΕΛΤΙΩΣΗ ΤΟΥ ΔΗΜΟΣΙΟΥ ΧΩΡΟΥ» του Υπουργείου Περιβάλλοντος και Ενέργειας που χρηματοδοτείται από το Ευρωπαϊκό Ταμείο Ανάκαμψης και Ανθεκτικότητας.
- Σφυροκόπημα Ανδρουλάκη για τις υποκλοπές: Εάν υπουργός άλλης κυβέρνησης έκανε τη δήλωση του Γεωργιάδη θα είχε παραιτηθεί
- «Ξεχύθηκαν» στους δρόμους στο Μαρόκο – Οπαδοί βγήκαν για να πανηγυρίσουν το Κόπα Άφρικα (vids)
- Σε εξέλιξη απεργία των νοσοκομειακών γιατρών – Συγκέντρωση στο υπουργείο Υγείας
- Ο Μάρκο Ρούμπιο αρνείται ότι οι ΗΠΑ επιδιώκουν να ανατρέψουν τον πρόεδρο της Κούβας
- Ο Φουρνιέ… ανάγκασε τον Γιασικεβίτσιους σε αυτοκριτική: «Είναι ξεκάθαρο ότι έκανα κακή δουλειά» (vid)
- Ο πρώην σύζυγος της Έιμι Γουάινχαουζ για τον θάνατό της
- Οι υποψίες επιβεβαιώνονται – Η κλιματική αλλαγή επιταχύνθηκε κατά σχεδόν 2 φορές σε μια δεκαετία
- Άγιον Όρος: Όχημα έπεσε στη θάλασσα στο λιμάνι της Δάφνης
Ακολουθήστε το in.gr στο Google News και μάθετε πρώτοι όλες τις ειδήσεις







![Άκρως Ζωδιακό: Τα Do’s και Don’ts στα ζώδια σήμερα [Τετάρτη 18.03.2026]](https://www.in.gr/wp-content/uploads/2026/03/rafael-barquero-nu-qycrZnS0-unsplash-315x220.jpg)













































































Αριθμός Πιστοποίησης Μ.Η.Τ.232442