Τρίτη 07 Απριλίου 2026
weather-icon 21o
Πλατεία Οικουμενικού Πατριαρχείου στην Πυλαία

Πλατεία Οικουμενικού Πατριαρχείου στην Πυλαία

«Έπεσαν οι υπογραφές» για την πλατεία Οικουμενικού Πατριαρχείου στα Κωνσταντινοπολίτικα Πυλαίας.

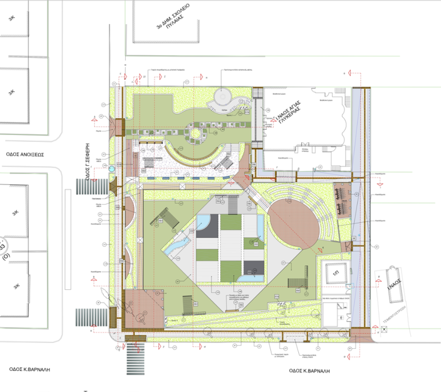
Σε τροχιά υλοποίησης μπαίνει έργο αστικής ανάπλασης για το Δήμο Πυλαίας – Χορτιάτη, με την υπογραφή της σύμβασης για την κατασκευή της πλατείας Οικουμενικού Πατριαρχείου στο Συνοικισμό Κωνσταντινουπολιτών, δίπλα στον Ιερό Ναό Αγίας Γλυκερίας.

Πρόκειται για ένα έργο που συνδυάζει τον βιοκλιματικό σχεδιασμό με την αισθητική αναβάθμιση, και χρηματοδοτείται από πόρους του ΕΣΠΑ 2021-2027 μέσω του Προγράμματος Δημοσίων Επενδύσεων (ΠΔΕ), όπως τονίζει μεταξύ άλλων η σχετική ανακοίνωση του Δήμου. Η νέα πλατεία σχεδιάζεται ως ένας σύγχρονος, ανοιχτός και λειτουργικός δημόσιος χώρος, με έμφαση στο πράσινο, την προσβασιμότητα και τη βιώσιμη ανάπτυξη, φιλοδοξώντας να αποτελέσει ένα ζωντανό σημείο συνάντησης για μικρούς και μεγάλους.

Το έργο αποσκοπεί στην ανάδειξη της πλατείας ως ολοκληρωμένης εικόνας αστικού χώρου συνάθροισης κοινού, πρασίνου, ημερήσιας αναψυχής και φιλοξενίας μικρής κλίμακος εκδηλώσεων, με διαμορφωμένες προσβάσεις που καθιστούν όλα τα σημεία της παρέμβασης φιλικά στους χρήστες. Εντάσσεται, στο πλαίσιο ολοκληρωμένου σχεδιασμού των κεντρικών κοινόχρηστων χώρων της Πολεοδομικής Ενότητας 4 της Πυλαίας με γνώμονα την αύξηση του αριθμού των επιφανειών που καταλαμβάνει το πράσινο (δένδρα) & οι φυτεύσεις, την ενίσχυση της διαπερατότητας των εδαφών με σκοπό την αναβάθμιση του αστικού περιβάλλοντος και την βελτίωση του μικροκλίματος της περιοχής.

Η συνολική διάρκεια υλοποίησης του έργου ανέρχεται σε 18 μήνες

Αξιοποίηση δημόσιου χώρου

«Σε λίγους μήνες από σήμερα προσφέρουμε στους συμπολίτες μας έναν ακόμα σύγχρονο, πανέμορφο και λειτουργικό δημόσιο χώρο. Με σχέδιο και συστηματική διεκδίκηση, αξιοποιήσαμε στο έπακρο τους πόρους του ΕΣΠΑ 2021-2027 και του ΠΔΕ, μετατρέποντας τα χρηματοδοτικά εργαλεία σε έργα ουσίας που αναβαθμίζουν την καθημερινότητα όλων μας.

Είναι συγκινητικό πως η νέα πλατεία αναπτύσσεται πέριξ του Ι.Ν. Αγίας Γλυκερίας στα Κωνσταντινοπολίτικα Πυλαίας και φέρει την ονομασία του Οικουμενικού Πατριαρχείου “σφραγίζοντας” την ταυτότητα της περιοχής. Συνεχίζουμε να εργαζόμαστε με την ίδια συνέπεια, ομορφαίνοντας τις γειτονιές μας και χτίζοντας τον Δήμο που μας αξίζει. Να είναι καλορίζικη!», δήλωσε μεταξύ άλλων σχετικά ο Δήμαρχος Πυλαίας – Χορτιάτη και Πρόεδρος της Ένωσης Δήμων Κεντρικής Μακεδονίας Ιγνάτιος Καϊτεζίδης.

Ακολουθήστε το in.gr στο Google News και μάθετε πρώτοι όλες τις ειδήσεις

in.gr | Ταυτότητα

Διαχειριστής - Διευθυντής: Λευτέρης Θ. Χαραλαμπόπουλος

Διευθύντρια Σύνταξης: Αργυρώ Τσατσούλη

Ιδιοκτησία - Δικαιούχος domain name: ALTER EGO MEDIA A.E.

Νόμιμος Εκπρόσωπος: Ιωάννης Βρέντζος

Έδρα - Γραφεία: Λεωφόρος Συγγρού αρ 340, Καλλιθέα, ΤΚ 17673

ΑΦΜ: 800745939, ΔΟΥ: ΚΕΦΟΔΕ ΑΤΤΙΚΗΣ

Ηλεκτρονική διεύθυνση Επικοινωνίας: in@alteregomedia.org, Τηλ. Επικοινωνίας: 2107547007

ΜΗΤ Αριθμός Πιστοποίησης Μ.Η.Τ.232442

Τρίτη 07 Απριλίου 2026
Απόρρητο