Δείτε τις απαντήσεις στις ερωτήσεις σας
Ερώτηση Ηθελα να ρωτησω αν υπαρχει καποιο ειδος τζακιου που να μην χρειαζεται εξωτερικη καμιναδα; Απάντηση από την Κ. Μ. Τζάκια που δεν χρειάζονται καμινάδα είναι τα λεγόμενα οικολογικά τζάκια αιθυλικής αλκόολης. Είναι όμορφα και καλόγουστα και δίνουν μιά όμορφη αίσθηση θαλπωρής με περιορισμένη όμως θερμοδυναμική ικανότητα. Ερώτηση από την κ. καλογιάννη Αγορασα μια tv […]
Ερώτηση
Ηθελα να ρωτησω αν υπαρχει καποιο ειδος τζακιου που να μην χρειαζεται εξωτερικη καμιναδα;
Απάντηση από την Κ. Μ.
Τζάκια που δεν χρειάζονται καμινάδα είναι τα λεγόμενα οικολογικά τζάκια αιθυλικής αλκόολης. Είναι όμορφα και καλόγουστα και δίνουν μιά όμορφη αίσθηση θαλπωρής με περιορισμένη όμως θερμοδυναμική ικανότητα.
Ερώτηση από την κ. καλογιάννη
Αγορασα μια tv πλασμα τοιχου 46ʼʼ και θελω να ρωτησω σε τι υψος να την τοποθετησω στον τοιχο απεναντι απο το καθιστικο και απο κατω τη να βαλω για να μην ειναι κενο.
Μπορω να βαλω καποιο επιπλο ή καποια συνθεση;
Απάντηση από την Κ. Μ.
Φροντίστε το μέσον της οθόνης να είναι στο ύψος των ματιών όταν κάθεστε -χοντρικά γύρω στα 80 cm, θα έλεγα. Μπορείτε να την κάνετε επιτοίχεια και χωρίς κανένα άλλο έπιπλο για πιο minimal αποτέλεσμα ή να την εντάξετε σε κάποια σύνθεση ή ακόμα και να την τοποθετήσετε σε τροχήλατο έπιπλο τηλεόρασης. Μια καλόγουστη και σωστά εναρμονισμένη με τον υπόλοιπο χώρο σύνθεση είναι η πιο ολοκληρωμένη λύση.
Ερώτηση από τη Ν.G.
Θα ήθελα τη γνώμη σας σχετικά με το χρώμα της τραπεζαρίας (+ καρέκλες) σε ένα σαλόνι το οποίο έχει γκρι καναπέ γωνιακό, μαύρη με Ibox πολυθρόνα δίπλα από το τζάκι και μαύρο με Inox τραπεζάκι στρογγυλό. Το πάτωμα επίσης είναι μαύρο και έχω λευκό με γρι κουρτίνες και ριχτάρια καθώς και μοκέτα.
Ο χώρος είναι ενιαίος με κουζίνα όπου υπάρχει πάσο σε χρώμα venge και δύο μαύρα ψηλά σκαμπό. Με τι χρώμα τραπεζαρίας μπορώ να ανοίξω τον χώρο. Γυάλινη με λευκές καρέκλες θα πήγαινε;
Απάντηση από την Κ. Μ.
Καταλαβαίνω ότι θέλετε να «ανοίξετε» λίγο το χώρο με κάτι πιο φωτεινό και η γυάλινη τραπεζαρία με τις λευκές καρέκλες είναι μια καλή λύση,αλλά για το προσωπικό μου γούστο ακόμα πιο ωραία θα ταίριαζε venge τραπεζαρία με μαύρες (δερμάτινες ίσως) καρέκλες. Για ένα πιο bourlesque και sexy στιλ σκεφτείτε επίσης κόκκινες καρέκλες.
Ερώτηση από την Τίνα Μ.
Θα ήθελα τη γνώμη σας σχετικά με το χρώμα που ταιριάζει σε χαλί για σαλόνι με καναπέ σε χρώμα μελιτζανί (σκούρο) και πάτωμα πλακάκι –μωσαϊκό χρώματος μπεζ (με νερά, κλασικό των ’70s).
Απάντηση από την Κ. Μ.
Τόσο το χρώμα του καναπέ σας όσο και του πατώματος είναι σχετικά ουδέτερα και ταιριάζουν με πολλά χρώματα και στιλ. Αν είστε τολμηρή με τα χρώματα και σας αρέσουν οι αντιθέσεις, ένα χαλί σε φούξια-μοβ ή σε μπορντώ αποχρώσεις θα έδινε ένα επιβλητικό και εντυπωσιακό αποτέλεσμα. Αν όμως προτιμάτε πιο ήσυχους τόνους επιλέξτε κάτι σε μπεζ ή γκρι ή λιλά μονόχρωμο ή ακόμα και με ‘ 70s γεωμετρικά σχέδια.
Ερώτηση από την Κ. Ψαρρά
Για την εταιρεία ΜΑΡΧΟΝΑ τι έχετε να μας πείτε; Ειδικεύονται και αυτοί στα Ενεργειακά τζάκια γιατί στο google μου έβγαλε και αυτήν την εταιρεία; Ποια είναι η γνώμη σας; Η Panthermika, η art + fire, είναι στην Θεσσαλονίκη, η Δάβρης στην Ηλιούπολη, η Oikofire στην Κέρκυρα, υπάρχει κάποιος άλλο πιο κεντρικά ή πιο βόρεια; Ευχαριστώ εκ των προτέρων.
Απάντηση από την Κ. Μ.
Η εταιρεία που αναφέρατε είναι μεγάλη,οργανωμένη και εκπροσωπεί πολλούς επώνυμους οίκους ενεργειακής εστίας. Βόρεια στην Αττική θα βρείτε επίσης:
-ESTIA GREEN στην Κηφισιά
-ESTIA στη Μεταμόρφωση.
Ερώτηση από τη Δήμητρα Κ.
Ο φίλος μου μόλις μετακόμισε σε νέο σπίτι και πρόλαβε ήδη να βάψει τον έναν τοίχο της κρεβατοκάμαρας -του προσκέφαλου του κρεβατιού- σε χρώμα κεραμιδί. Με ποιο χρώμα μπορεί να συνδυαστεί ώστε να βαφτούν οι υπόλοιποι 3 τοίχοι; Τα έπιπλα είναι σκουρόχρωμα,το κρεβάτι για παράδειγμα είναι σιδερένιο κι έχει το χρώμα της σκουριάς. Έλεγα μήπως το έβαφε όλο το δωμάτιο κεραμιδί αλλά φοβάμαι μήπως είναι σκοτεινό, σκούρο για όλη την κρεβατοκάμαρα.
Απάντηση από την Κ. Μ.
Γενικά είναι καλό στις κρεβατοκάμαρες να αποφεύγουμε τα έντονα χρώματα γιατί προκαλούν υπερδιέργεση με αποτέλεσμα να δυσκολευόμαστε να κοιμηθούμε. Στον τοίχο τού προσκέφαλου δεν ενοχλεί τόσο γιατί δεν τον βλέπουμε ξαπλωμένοι . Στους υπόλοιπους τοίχους και σε συνδυασμό με τα υπόλοιπα έπιπλά σας, ρίξτε λίγο τους τόνους με ένα μπεζ ή γκρι ανοιχτό.
Ερώτηση από τη Μαρίνα
Χτίζω 2 σπίτια και έχω λίγο μπερδευτεί με τα χρώματα. Τα κτήρια είναι 2 αδελφάκια με κεραμοσκεπή παλαιωμένοου τύπου κεραμίδια(2χρωμα ). Τα παράθυρα έχουν πλαίσιο. Το κτήριο στις γωνίες του έχει κολώνες. Το κτήριο στα υπόγεια είναι επενδεδυμένο με πέτρα. Τα παράθυρα και οι μπαλκονόπορτες των σπτιών είναι στο ένα χρώματος λαδί-γκρι(χρώμα ελιάς) και στο άλλο γκρι ανοιχτό. Θα ήθελα να βάψω τα κτήρια με χρώματα ώχρας εξωτερικά, αλλά διαφορετικά στο κάθε κτήριο.
Σας στέλνω 2 φωτογραφιες και περιμένω τις προτάσεις σας ευχαριστώ πολύ.
Απάντηση από την Κ. Μ.
Η επιλογή της ώχρας είναι εξαιρετική για το σπίτι με τα κουφώματα στο χρώμα της ελιάς. Το άλλο σπίτι με τα κουφώματα σε γκρι ανοιχτό καλό θα ήταν να βαφτεί σε κοντινή μεν απόχρωση με την ώχρα, αλλά λιγότερο κίτρινη και περισσότερο σομόν.
Ερώτηση από Ρένα Κ.
Έχω ένα μακρόστενο τετράγωνο σαλόνι το οποίο εκεί μέσα βρίσκεται η κουζίνα Η οροφή μου είναι ταβάνι όλο ξύλινο και τα ντουλάπια της κουζίνας είναι προς το σκούρο χρώμα. Τι χρώμα καναπέ θα μπορούσα να βάλω και τι σύνθετο από τα μοντέρνα να βάλω -δηλαδή αν πρέπει να είναι venge η άλλο χρώμα;
Απάντηση από την Κατερίνα Μαθιουδάκη
Εξαρτάται αν το γούστο σας είναι μοντέρνο ή πιο κλασικό. Αν θέλετε ένα μοντέρνο χώρο επιλέξτε venge σύνθεση, με καναπέ είτε σε γκρι, μαύρο είτε σε εκρού, λευκό. Οι συνδυασμοί αυτοί δημιουργούν ένα δυναμικό μίνιμαλ στιλ με στοιχεία βιομηχανικού design. Αν αυτό το ύφος δεν σας εκφράζει, μια άλλη λύση είναι: λευκοί – εκρού καναπέδες και σύνθεση από άσπρη λάκα. Είναι ένας καμβάς που θα σας επιτρέψει να δώσετε όποιο ύφος θέλετε εσείς στο χώρο σας με τα
υπόλοιπα στοιχεία: κουρτίνες, χαλιά, διακοσμητικά. Δεδομένης της ξύλινης οροφής δεν θα πρότεινα να προστεθεί κι άλλο χρώμα ξύλου στα έπιπλα για να μη γίνει το αποτέλεσμα πολύ ρουστίκ.
Ερώτηση από Χρ.Γιανν.
Αγαπητοί φίλοι είμαι συλλέκτης, και έχω μια συλλογή από 80 Αφρικάνικες ξύλινες μάσκες.
Θέλω αυτές τις μάσκες να τις τοποθετήσω στον τοίχο του γραφείου μου που είναι και εκθετικός χώρος και για άλλες συλλογές μου.
Δεν μπορώ να καταλήξω με ποιο τρόπο πρέπει να τοποθετηθούν στο τοίχο.
Να γίνει κάποια κατασκευή με γυψοσανίδες, που θα έχουν «κουτιά» σε διάφορες διαστάσεις, μέσα στα οποία θα μπαίνει η κάθε μάσκα;
Να κρεμαστούν απλά στον τοίχο σαν κάδρα; Κάποια άλλη λύση;
Θα σας ήμουν υποχρεωμένος αν μου προτείνατε κάποια λύση.
Φιλικά
Απάντηση από την Κατερίνα Μαθιουδάκη
Βρίσκω εξαιρετικά ενδιαφέρουσα τόσο τη συλλογή σας όσο και την ιδέα να την αξοιοποιείσετε. Μιά κατασκευή από γυψοσανίδες και κρυφό φωτισμό με χωρίσματα σε διάφορα μεγέθη θα αναδείξει και θα προβάλλει μοναδικά τη συλλογή σας. Είναι επίσης μια οικονομική λύση. Μια άλλη εντυπωσιακή αλλά πιο ακριβή λύση είναι η τοποθέτηση των μασκών σε design βιβλιοθήκη, αυτές τις μοντέρνες με τα κεκλιμένα χωρίσματα που δημιουργούν ανισομερή «κουτιά».
Ερώτηση από τη Χριστίνα
Καλησπέρα σας,
Συγχαρητήρια για τη στήλη που δημιουργήσατε.
Μετακομίζω και έχουμε βάψει το σαλονι στο χρώμα του καπνου. Οι καναπέδες μου έχουν χρώμα του γάλατος και το τραπεζακι μαζί με το σύνθετο καφε. Στον ίδιο χώρο του σαλονιού θα μπεί και η τραπεζαρία παραπέρα η οποία ειναι καφέ με καρέκλες πορτοκαλί. Τι κουρτίνες να βάλω; Τι χρώμα? Είναι δυο μπαλκονόπορτες και ένα παραθυράκι, αρα πρεπει να είναι ίδιες? Μου αρέσουν τα χρωματιστά. Επίσης μία άλλη ερώτηση, τα φωτιστικά πρέπει να είναι το ίδιο; Στο σαλόνι έχω ένα πολύ ωραίο φωτιστικό και μεγάλο, δεν μπορώ όμως να βρω το ίδιο και για την τραπεζαρία.
Ευχαριστώ πολύ
Απάντηση από την Κατερίνα Μαθιουδάκη
Προσωπικά θεωρώ ότι για το χρώμα στο σπίτι ισχύει το «less is more». Τα έντονα χρώματα μπορεί να μας φτιάχνουν τη διάθεση και να φωτίζουν το χώρο μας, γρήγορα όμως μπορεί να γίνουν κουραστικά και να τα βαρεθούμε. Εφόσον οι καρέκλες σας λοιπόν είναι πορτοκαλί, έχετε δώσει ήδη έναν έντονο χρωματικό τόνο και τα υπόλοιπα πρέπει να είναι πιο ήσυχα. Διαλέξτε κουρτίνες στο χρώμα των τοίχων ή του καναπέ για τις μπαλκονόπορτες -οπωσδήποτε ίδιες. Το παράθυρο μπορεί να διαφοροποιηθεί, ιδιαίτερα αν είναι σε κάποιο ωραίο, καίριο σημείο του χώρου και θέλετε να το τονίσετε. Ένα ώραίο «ρόμαν» σε τόνους χρυσαφί, καφέ ή εκρού, εμπριμέ ή μονόχρωμο θα δείξει πολύ όμορφο. Τα φωτιστικά ενός ενιαίου χώρου πρέπει να είναι ίδια ή τουλάχιστον ίδιου ύφους. Αν δεν βρίσκετε το ίδιο ζητήστε να σας φτιάξουν ένα παρόμοιο. Πολλές βιοτεχνίες φωτιστικών (π.χ. στη Λ. Βουλιαγμένης) αναλαμβάνουν παραγγελίες, σε καλές τιμές.
Ερώτηση από τη Λένα Α.
Προκειται για σαλοκουζίνα, ενιαιος χωρος, πάτωμα απο μεγάλα ασπρα πλακακια, ντουλαπια κουζινας και εντοιχισμένες συσκευές σε ματ λευκο με γκρι τελειώματα, μικρο τραπεζι κουζινας στο ίδιο χρωμα, διαχωριστικό κουζινας-τραπεζαριας χρωματος γκρι σκουρου, τραπεζαρια γυαλινης επιφάνειας,
Ο ημικυκλικος μεγάλος καναπες εχει γκρι βελουτε ταπετσαρια. Υπάρχει μικρό τζάκι με τουβλάκια κεραμιδι σε φοντο ασπρου μαρμαρου. το κεντρικο τραπεζι του σαλονιου ειναι μεγαλο 1,20×1,20 απο δέρμα σε αποχρωση ωχρας.
το τωρινο χρωμα των τοιχων ειναι του νερου και θέλω να το αλλάξω
θελω δώσω λιγο χρώμα και ζεστασια στο σαλονι ή/και στην τραπεζαρια ..
μου αρεσει το κοκκινο και το κιτρινο χρωμα γενικα.
Απάντηση από την Κατερίνα Μαθιουδάκη
Ο καλύτερος τρόπος για να «δέσουν» τα ψυχρά (γκρι, λευκό) με τα θερμά (κεραμιδί, ώχρα) χρώματα τού χώρου σας, είναι να κάνετε μιά έξυπνη επιλογή στα χρώματα τών τοίχων. Είναι «άποψη» και μόδα σήμερα ένας από τους
τοίχους μας να έχει έντονο χρώμα και διαφορετικό από αυτό των υπολοίπων. Διαλέξτε έναν τοίχο με το στοιχείο που θέλετε να προβάλλετε περισσότερο, π.χ. τον τοίχο τού τζακιού ή τον τοίχο του καναπέ και βάψτε τον σε ένα έντονο κεραμιδί-γκρενά.
Αφήστε τους υπόλοιπους τοίχους πιο ήσυχους, στο χρώμα της μανόλιας (απαλό κρεμ με ελάχιστο ροζ). Θα δώσετε αμέσως χαρακτήρα και στιλ στο χώρο σας εύκολα και οικονομικά.
Ερώτηση από την Aμαλία Σ.
Καλημέρα σας,
Συνημμένα θα βρείτε την κάτοψη της κουζίνας μου, καθώς και του χώρου δίπλα. Όπως θα δείτε, στη μέση του χώρου υπάρχει μια κολώνα που μας χωρίζει στα δύο το δωμάτιο και δεν ξέρω πώς μπορώ να τη χρησιμοποιήσω ώστε να ενσωματωθεί στην κουζίνα.
Τον χώρο δίπλα λέτε να τον χρησιμοποιήσω ως τραπεζαρία (ίσως με μια ροτόντα μπροστά από το παράθυρο) ή ως καθιστικό; Πού όμως θα έχω τραπεζαρία καθημερινή;
Απάντηση από την Ε.Κ.
Την κολώνα μπορείτε να την ενώσετε με το χώρο της κουζίνας με ένα πάσο χωρίς όμως να βάλετε και στο επάνω μέρος ντουλάπια ή οροφή, για να μην κλείσει πολύ ο χώρος.
Ως προς την τραπεζαρία είναι καλή θέση εκεί για μία ροτόντα το πολύ 1.20 η οποία θα μπορεί να ανοίγει και να γίνεται μεγαλύτερη.
Ερώτηση από τη Μ.Λ.
Στο σαλόνι μου έχω ένα σύνθετο το οποίο είναι κατασκευή και καλύπτει δύο τοίχους (γωνία – γάμα). Το έχω βαρεθεί αλλά είναι δύσκολο να το χαλάσω. Επάνω έχει πορτάκια με ξύλο, επίσης και κάτω. Έχει δεξιά και αριστερά στη μία πλευρά δίφυλλα πορτάκια με τζάμι και επίσης στην άλλη πλευρά το ίδιο πάνω κάτω ξύλοΚαι επίσης άλλο ένα δίφυλλο με τζάμι.
Δεν μου αρέσει να φαίνονται μέσα τα ποτήρια και άλλα διάφορα. Είναι πολύ παλαιομοδίτικο και φαίνεται και πολύ φορτωμένο.
Επίσης στη γωνία που κάνει δεν εφάπτονται οι δύο πλευρές του σύνθετου αλλά έχει κενό με ράφια.
Σκέφθηκα λοιπόν να μου πείτε και εσείς αν θα είναι ωραίο όπου έχει τζάμι να βάλω καθρέφτη αντικέ για να κρυφτούν όλα τα παραπάνω και επίσης στη γωνία για να την κλείσω να βάλω κάθετες ράβδους από τον ίδιο καθρέφτη, γιατί δεν θέλω ράφια με διάφορα διακοσμητικά επάνω.
Το σαλόνι και η τραπεζαρία μου είναι νεοκλασικά με ψάθα και η ταπετσαρία τους είναι στο μπεζ χρώμα.
Απάντηση από την Ε.Κ.
Ο καθρέφτης αντικέ δεν είναι πολύ ωραίος να τον χρησιμοποιήσετε σε τέτοια εφαρμογή.
Πρώτη λύση θα ήταν αντί ποτήρια στις βιτρίνες να τοποθετήσετε βιβλία και στη γωνία μπουκάλια και ποτήρια για να δημιουργήσετε ένα μπαράκι.
Δεύτερη λύση για να αλλάξει το έπιπλο είναι να το βάψετε ένα χρώμα όπως το γκρι – λαδί της ελιάς. Με το βάψιμο θα αλλάξει τελείως, θα γίνει ποιο σύγχρονο και δεν θα σας φαίνετε παλαιομοδίτικη η βιτρίνα με τα ποτήρια.
Ερώτηση από τον Γ.Α.
Έχω γκρι καναπέ γωνία, καφέ έπιπλα και τζάκι με πέτρα καφέ ανοιχτό.
Τι χρώμα θα μπορούσα να βάψω τον τοίχο πίσω από τον καναπέ και τον τοίχο στο τζάκι.
Απάντηση από την Ε.Κ.
Ένα καφέ γκρι θα είναι πολύ ωραίο και σύγχρονο χρώμα για τον χώρο του καναπέ και σε πιο σκούρο τόνο για το τζάκι. Άλλωστε η πέτρα στο τζάκι πρέπει να έχει και γκρι νερά.
Ερώτηση από την Ευαγγελία
Το σαλονι είναι μαύρο βελούδο ξυρισμένo με καντημένα μαξιλάρια από ασημί κλωστή. Mαύρο ξύλο με κρύσταλλο τα τραπέζια, μπορντό τα καθίσματα στις καρέκλες τραπεζαρίας.
Το χαλι γκρι μοντερνο (σαν φλοκατη) και σας ρωτω τι χρωμα κουρτινες θα ταιριαζαν (2 μπαλκονοπορτες και 1 παραθυρο στην τραπεζαρια και1 στην κουζινα), ενιαιος χωρος σε γαμα, σαλονι, τραπεζαρια και καουζινα.
Απάντηση από την Ε.Κ.
Στις κουρτίνες είναι καλό, στη συγκεκριμένη περίπτωση, να τις κρατήσουμε σε ουδέτερο χρώμα όπως ένα ανοιχτό γκρι και να δώσετε μια ιδιαιτερότητα από την ύφανση του πανιού. Όπως ένα μεταξωτό σουά σοβάζ που έχει κόμπους στην ύφανση ή ένα διάφανο σαν πλεχτό ύφασμα με ασημένια κλωστή.
Καλό είναι το ύφασμα να μην έχει σχέδια. Στις μπαλκονόπορτες απλή ραφή και στα παράθυρα το ίδιο ύφασμα σε ρόμαν.
Ερώτηση από την Ευαγγελία Κ.
Το σαλόνι μου είναι γκρι γωνία και το πλακάκι κάτω είναι ανοιχτό, άσπρο με λίγα νερά γκρι ανοιχτό Help please τι χρώμα χαλί να πάρω έχω μπερδευτεί.
Απάντηση από την Ε.Κ.
Το σαλόνι σας μπορεί να δεχτεί πολλά χρώματα σε χαλιά.
Έχει τη δυνατότητα για μια σκούρα απόχρωση του γκρι ή για να δημιουργήσετε αντίθεση. Κάποια από τα χρώματα που μπορείτε να χρησιμοποιήσετε είναι μπορντό, μαύρο, μελιτζανί και πολλά άλλα χρώματα. Δεν πρέπει να σας προβληματίζει, τα γκρι είναι ουδέτερα και ανάλογα με το στιλ που θέλετε να ακολουθήσετε, διαλέγετε και χρώμα για το χαλί σας.
Ερώτηση από την Ηρώ
Στο σπίτι μου η κουζίνα είναι όλη καλυμμένη με ραμποτέ (χρώμα ξύλου) καθώς και τα ντουλάπια είναι στο ίδιο στιλ. Τι μπορώ να κάνω για να φανεί πιο όμορφη;
Απάντηση από την Ε.Κ.
Η μία λύση είναι να βάψετε όλα τα ραμποτέ ένα εκρού ανοιχτό χρώμα και αμέσως όλη η κουζίνα θα πάρει φως και θα γίνει πιο σύγχρονη και μοντέρνα, όπου με λίγες πινελιές από ανοξείδωτα σκεύη κουζίνας θα ολοκληρωθεί η μοντέρνα εικόνα της νέας κουζίνας σας.
Η δεύτερη λύση, εάν δεν μπορείτε να τη βάψετε, είναι να χρησιμοποιείτε αποχρώσεις από ένα χρώμα, όπως το πράσινο ή το κίτρινο για όλα τα υπόλοιπα αντικείμενα που έχετε έξω από τα ντουλάπια με καρό κουρτίνες για λίγο πιο country ατμόσφαιρα.
Ερώτηση από την Κάτια Κ.
Συγχαρητήρια για την πολύ χρήσιμη στήλη σας. Ετοιμάζουμε το σπίτι μας με τον αρραβωνιαστικό μου και θα ήθελα να με βοηθήσετε στα χρώματα. Έχουμε βάλει μεγάλα γυαλιστερά πλακάκια καφέ σκούρο με χρυσές γραμμές ακανόνιστες κι επίσης έχουμε βάψει τους τοίχους στο καθιστικό και την κουζινα (ενιαίος χώρος) πορτοκαλί. Τι χρώμα θα έπρεπε να γίνουν τα ντουλάπια της κουζίνας; Σκεφτήκαμε επειδή υπάρχει πολύ καλός φωτισμός να γίνουν τα περισσότερα καφέ σκούρο με 2-3 ντουλάπια πάνω από το νεροχύτη πορτοκαλί καθώς και το κομμάτι πίσω από τον απορροφητήρα για να «φωτίζουν» το χώρο. Να σημειώσω ότι τα ηλεκτρικά είναι inox. Επίσης σε τι χρώματα προτείνετε να κινηθούμε για τα έπιπλα του σαλονιού;
Ευχαριστώ εκ των προτέρων.
Απάντηση από την Ε.Κ.
Η κουζίνα σας όπως την έχετε φανταστεί είναι μία πολύ καλή λύση, αρκεί να υπάρχει αρκετός φυσικός και τεχνητός φωτισμός.
Για τους τοίχους θα προτιμούσα αποχρώσεις της κρέμας και του χρυσού ή ακόμα και σοκολά ανοιχτό, και όχι έντονο πορτοκαλί γιατί θα σας κουράσει και δεν είναι εύκολο στους υπόλοιπους συνδυασμούς.
Όσο για τα έπιπλα οι καναπέδες θα μπορούσαν να είναι σε αποχρώσεις του καφέ σε οποιοδήποτε τόνο ή κάνοντας μία ωραία αντίθεση λαδί-γκρι σκούρο ή μελιτζανί σκούρο. Αυτά τα χρώματα πάντα σε σχέση με τι απόχρωση πορτοκαλί έχετε διαλέξει.
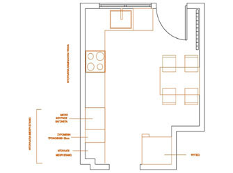
Ερώτηση από τoν Κυριάκο
Σας στέλνω την κάτοψη και θα ήθελα με την πολύτιμη εμπειρία σας να μου πείτε πως να διαμορφώσω το σαλόνι και που θα βάλω την τηλεόραση, τον καναπέ, τα έπιπλα (που δεν έχω αγοράσει ακόμη) κτλ. Να σας διευκρινίσω ότι πίσω από την πόρτα της εισόδου έχει μπει γυψοσανίδα διαχωριστική από την κουζίνα με ένα παράθυρο στην μέση και το τζάκι όπως φαίνεται στην κάτοψη είναι σε εσοχή. Έχω το εξής πρόβλημα, δεν ξέρω πως να διαμορφώσω το σαλόνι και που θα βάλω την τηλεόραση. Που θα μπεί ο καναπές και που η τηλεόραση;
Η τηλεόραση να μπει πάνω από το τζάκι ή σε κάποιο έπιπλο;
Επίσης δεξιά από τον εξώστη της κουζίνας υπάρχει ένας χώρος, μάλλον για τραπεζαρία; Δεν ξέρω πώς να εκμεταλλευτώ τον χώρο μου και έχω πελαγώσει.
Παρακαλώ βοηθείστε με να βρώ λύση. Ευχαριστώ προκαταβολικά.
Απάντηση από την Ε.Κ.
Στο σαλόνι σας λόγω του τζακιού το καθιστικό πρέπει να τοποθετηθεί απέναντι από το τζάκι κατά συνέπεια και η TV πάνω στο τζάκι. Δίπλα στο τζάκι καλό είναι να τοποθετήσετε ένα χαμηλό έπιπλο (ό,τι διαστάσεων θέλετε) το οποίο θα περιέχει τυχόν στερεοφωνικά και όλα τα μηχανήματα της TV όπως DVD κ.ά.
Από εκεί εσωτερικά στον τοίχο θα πρέπει να περάσετε όλα τα καλώδια που θα χρειαστείτε για τη σύνδεση και λειτουργία της TV με το DVD έτσι ώστε να μην κρέμονται καλώδια στον χώρο.
Σ’ αυτόν τον τοίχο θα ήταν ωραίο ένα δοκάρι κατά μήκος όλου του τοίχου στο ταβάνι με χωνευτά σποτ, αυτό θα ζεστάνει το χώρο και θα σας διακοσμήσει ωραία την πλευρά αυτή.
Όσο για την τραπεζαρία είναι ωραία θέση πίσω από την κουζίνα έτσι ώστε να μη σας κλείνει τετραγωνικά στο καθιστικό άσκοπα μία τραπεζαρία που δεν τη χρησιμοποιείτε συχνά.
(Δείτε την KΑΤΟΨΗ)

Ερώτηση από τη Μαρία Τ.
Καλησπέρα και συγχαρητήρια για τη στήλη σας. Θα ήθελα τη γνώμη σας στο εξής θέμα: Σ’ ένα σαλόνι που είναι βαμμένο σε γήινες αποχρώσεις (μπεζ-καφέ) και που τα έπιπλά του είναι σε χρώμα καρυδιάς ή κερασιάς, τι χρώμα υφάσματα θα προτείνατε για τους καναπέδες και τι για τις κουρτίνες; Παρακαλώ η βοήθειά σας θα ήταν πολύτιμη χάρη στην εμπειρία σας!
Απάντηση από την Ε.Κ.
Στα χρώματα που έχετε χρησιμοποιήσει στους τοίχους η μία λύση είναι να χρησιμοποιήσετε αποχρώσεις αυτών με μεγάλη διαφορά όμως για να κάνουν μία αντίθεση. Όπως εκρού καναπέδες με εκρού κουρτίνες ή καφέ καναπέδες με κουρτίνες στο χρώμα του τοίχου. Έτσι αφήνετε ουδέτερους τους τοίχους και κουρτίνες, και το ζεσταίνετε με τα ξύλινα έπιπλα και τα υφάσματα των καναπέδων.
Η άλλη λύση είναι (ανάλογα με την συγκεκριμένη απόχρωση των τοίχων) να βάλετε στους καναπέδες ένα χρώμα όπως λαδί της ελιάς ή να βάλετε λεπτομέρειες στο σαλόνι σ’ αυτό το χρώμα όπως τα μαξιλαράκια του καναπέ.
Ερώτηση από την Εφη Δ.
Γεια σας! Ετοιμάζουμε το σπίτι μας το οποίο είναι μία μεζονέτα. Είμαστε στη φάση να διαλέξουμε χρώματα για να βαφτούν οι εσωτερικοί χώροι και να σχεδιάσουμε τι έπιπλα θα βάλουμε. Ο χώρος μας θα ήθελα να είναι ζεστός και φωτεινός γι΄αυτό θα διαλέξω γήινα χρώματα. Όπως και στα πατώματα θα βάλω ξύλο.
Παρακαλώ θα ήθελα να με βοηθήσετε, τι έπιπλα και πώς θα τοποθετηθούν στο χώρο. Επισυνάπτω κάτοψη του υπογείου και ισογείου.
Εμείς έχουμε μια ιδέα και σας τη στέλνω στις κατόψεις (εκεί που έχουμε βάλει την TV είναι τζάκι από κάτω).
Ευχαριστώ
Απάντηση από την Ε.Κ.
Η διάταξη των επίπλων που έχετε επιλέξει είναι πολύ όμορφη και λειτουργική.
Την ατμόσφαιρα όμως του χώρου θα τη δώσουν το στιλ των επίπλων και τα υλικά αυτών.
Τα υφάσματα των καναπέδων με τα γήινα χρώματα στους τοίχους πρέπει να είναι ζεστά ουδέτερα με πινελιές ίσως από ένα ή δύο έντονα χρώματα. Αυτό είναι καθαρά στο στιλ που σας αρέσει.
Το ξύλινο πάτωμα είναι ουδέτερο και μπορείτε να ταιριάξετε από βελούδο σ έναν ανάλαφρο καναπέ μέχρι δερμάτινο με πολύ άνετο κάθισμα. Πάντα να σκέφτεστε τι είναι αυτό που σας ξεκουράζει και σας αγκαλιάζει και όχι τι αρέσει στους καλεσμένους σας.
Ξεκινώντας από ένα έπιπλο που σας αρέσει μπορείτε να προχωρήσετε στην υπόλοιπη διακόσμηση. Έτσι γενικά δεν μπορώ να σας συμβουλέψω, χωρίς να ξέρω κάτι για αρχή. Και πόσο μάλλον δεν μπορεί να γίνει αυτό για όλο το σπίτι μέσω της στήλης.
Ερώτηση από την Κωνσταντίνα Γ.
Σας στέλνω την κάτοψη της κουζίνας, για την οποία θα ήθελα την πολύτιμη βοήθειά σας ως προς τον σχεδιασμό της. (Δείτε Κάτοψη 7)

Απάντηση από την Ε.Κ.
Στην είσοδο της κουζίνας επειδή υπάρχει ο όγκος του ψυγείου και μας δημιουργεί έτσι και αλλιώς ένα σκοτεινό σημείο, μπορείτε να δημιουργήσετε έναν διάδρομο από ψηλά ντουλάπια και το ψυγείο.
Ο φούρνος δεν έχει πρόβλημα με την παροχή γιατί είναι απλά ένα καλώδιο που μεταφέρετε πίσω από τα ντουλάπια.
Με αυτό τον τρόπο μπορείτε να έχετε μια λειτουργική κουζίνα με εντοιχισμένες ηλεκτρικές συσκευές.
Ερώτηση από τη Ν.Κ.
Στον χώρο της κουζίνας θα ήθελα να τοποθετήσω ένα εικόνισμα με ένα καντίλι, όμως δεν επιθυμώ να βρίσκεται αυτό πάνω στον πάγκο της κουζίνας, ούτε πάνω στα ντουλάπια αυτής όπως κάναν οι γιαγιάδες μας. Πιστεύετε πως είναι καλή ιδέα να το βάλω πάνω απ’ το τραπέζι, μαζί με μια σειρά από εικόνες; Ψάχνω να βρω κάτι σε κρεμαστό και όχι φυσικά μέσα σε εικονοστάσι, κάτι μοντέρνο, αλλά δεν μου αρέσει τίποτα.
Εσείς έχετε καμιά ιδέα να μου αναφέρετε; Υπάρχει μέρος που θα μπορούσα να το τοποθετήσω εκτός από την κουζίνα;
Απάντηση από την Ε.Κ.
Οι εικόνες και το καντήλι είναι σύμβολα για όλη την οικογένεια τα οποία είναι καλό να τοποθετούνται σε κοινόχρηστους χώρους.Ένας τέτοιος χώρος είναι το σαλόνι. Εκεί σε μία γωνία ή πάνω από κάποιο καλοριφέρ μπορείτε να δημιουργήσετε μία σύνθεση στον τοίχο, ίσως και με ένα τραπεζάκι από κάτω με μία λάμπα ή και μόνες τους δημιουργούν μία ωραία ατμόσφαιρα ανεξάρτητα αν είναι μοντέρνα ή κλασική η διακόσμηση του σπιτιού σας.
Είναι σαν συλλογή έργων τέχνης ιδιαίτερα εάν υπάρχουν και παλιές εικόνες.
Εάν δεν τοποθετήσετε τραπεζάκι μπορείτε να βάλετε κρεμαστό καντήλι.
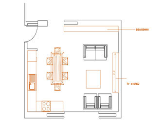
Ερώτηση από τους Ν.Π. κ Ι.Γ.
Η καινούρια σας στήλη έχει πολύ ενδιαφέρον.
Βρισκόμαστε σε διαδικασία ανακαίνισης και προβληματιζόμαστε για το πώς θα φτιάξουμε έναν μοντέρνο και καλαίσθητο χώρο. Η κουζίνα και το σαλόνι είναι μαζί στον ίδιο χώρο. Την κουζίνα θα την φτιάξουμε από την αρχή οπότε υπάρχει πλήρης ελευθερία σχεδιασμού. Μια ειδική μας απορία είναι κατα πόσο είναι εφικτό να μπει στον χώρο του σαλονιού τραπεζαρία χωρίς να τον «μπουκώσει» ή αν πρέπει να προσαρτηθεί στην κουζίνα είτε με τη μορφή τραπεζιού είτε με την μορφή πάγκου. Ποιά θα ήταν η πρότασή σας ώστε νε είναι πρακτική η κουζίνα και άνετο το σαλόνι μας. Συννημένο θα βρείτε το σχέδιο του χώρου με την κουζίνα όπως είναι στο αρχικό σχέδιο του σπιτιού.
Ευχαριστούμε.
Απάντηση από την Ε.Κ.
Το σαλόνι σας θα ήταν πολύ όμορφο με δύο λύσεις
Α. συνεχόμενος πάγκος τραπέζι σε ύψος 1.10cm με τον νεροχύτη στον πάγκο ή τις εστίες της κουζίνας, με σκαμπό ψηλά. Αυτό δημιουργεί παρεήστικη ατμόσφαιρα και η νοικοκυρά δεν είναι απομονωμένη από τους καλεσμένους ή την οικογένεια.
Σε περίπτωση που τοποθετηθεί ο νεροχύτης είναι όμορφο να κατέβουν δύο κρεμαστά φώτα πάνω από τον πάγκο, στην περίπτωση των εστιών τοποθετείτε ψευδοροφή για να τοποθετηθεί ο αποροφητήρας με χωνευτά φωτιστικά.
Β. στην περίπτωση της τραπεζαρίας μπορούμε να έχουμε ανοιχτή κουζίνα με τραπεζαρία όπως στο σχέδιο, το οποίο είναι πολύ όμορφη διάταξη και επίσης πολύ μοντέρνο.
(Δείτε παρακάτω – Κατόψεις 5 και 6)


Ερώτηση από τον Κ.Κ. Παρακαλώ όπως με βοηθήσετε, τι έπιπλα και πώς θα τοποθετηθούν στο χώρο. Επισυνάπτω κάτοψη του χώρου.
Απάντηση από την Ε.Κ.
Καλημέρα,
Σας στέλνω την κάτοψη βάση των διαστάσεων που μου έχετε δώσει. (Δείτε παρακάτω – Κάτοψη 4).
Πρέπει να υπάρχει μια μικρή απόκλιση.
Tην τραπεζαρία μπορείτε να την τοποθετήσετε σε αυτόν το χώρο μια και δεν χρησιμοποιείται καθημερινά.
Στο σαλόνι έχετε τη δυνατότητα να αναπτύξετε δύο χώρους: έναν του τζακιού και ένα για το κυρίως σαλόνι.
Στο τζάκι δύο αναπαυτικές πολυθρόνες με κάποια πουφ χαμηλά και στο σαλόνι δύο καναπέδες ή ένα γωνιακό, με έπιπλο στην πλάτη του καναπέ, για να υποδέχεται ωραία το σαλόνι.
Συμπληρώνεται με ένα έπιπλο στο μεγάλο τοίχο σε συνέχεια του τζακιού ή χαμηλό για να δεχτεί TV και Stereo ή ό,τι άλλο έχει ανάγκη το σπίτι.
Ερώτηση από τη Γ.Α.
Γεια σας!! Συγχαρητηρια για την πολυ ωραια και πρωτοτυπη στηλη σας!!
θα ηθελα και εγω να σας κανω μια ερωτηση σχετικα με το υπνοδωματιο που προκειται να μεινω με τον αντρα μου συντομα.
Εχουμε βαλει την ντουλαπα που ειναι στους τονους που βλεπετε στη φωτο, ενα απλο χακι και ζαχαρι χρωμα αναγλυφη σαν ταπετσαρια, ενω ειναι το υλικο τετοιο. Το πλακακι ειναι σε τονους γκρι σαν μαρμαρο ασπρο-γκρι του παγου.
Μας αρεσει λοιπον το κρεβατι που εχει προσκεφαλο ψηλο(οχι πολυ) και τυπου καπιτονε αλλα και τα κρεβατια που εχουν τεσσερις στυλους και εχουν σαν κουνουπιερα κατι… Αυτο στη φωτο της στηλης σας 1η φωτο μας αρεσει. Θα θελαμε τετοια περιπου χρωματα, αλλα θα προτιμουσαμε να αποφυγουμε την ταπετσαρια… Επισης με τι κομοδινα θα μπορουσαμε να συνδυασουμε κατι τετοιο; Θα προτιμουσαμε να εχουν αποθηκευτικο χωρο.
Ευχαριστω για το χρονο σας. Περιμενω τη συμβουλη σας.
Απάντηση από την Ε.Κ.
Τα κομοδίνα δεν χρειάζεται να είναι το ίδιο στιλ με το κρεβάτι, μπορούν να είναι άλλο στιλ και άλλο χρώμα. Μπορείτε να χρησιμοποιήσετε παλιά ή καινούργια κομοδίνα και να τα βάψετε με λάκα σε ένα μπορντό ή άλλο χρώμα όπως ασημί ή χρυσό, για να δημιουργήσετε ένα πιο σύγχρονο στιλ. Στο καπιτονέ κεφαλάρι ταιριάζουν και τα μοντέρνα κομοδίνα σε απλή τετράγωνη γραμμή, ενώ στις κρεβατοκάμαρες με ουρανό ταιριάζουν και παλαιού τύπου με συρταράκι και ντουλαπάκι από κάτω.
Όσο για τον τοίχο στο κεφαλάρι του κρεβατιού εάν δεν θέλετε ταπετσαρία μπορείτε να τον βάψετε πιο σκούρο χρώμα από το υπόλοιπο δωμάτιο σε τόνους του χακί που είναι πολύ όμορφο χρώμα ή στο γκρι – λαδί της ελιάς.
Ερώτηση από την Ιωάννα
Θα ήθελα να μου λύσετε δυο απορίες μου. Ανακαινίζουμε το πατρικό σπίτι του συζύγου μου και δεν ξέρω τι να κάνω με τα έπιπλα. Εχουμε 2 χαλιά χειροποίητα μπουχάρα μπλε που δεν θέλω να τα αλλάξω. Τι χρώμα καναπέδων να διαλέξω για να ταιριάζει αλλά και για να τους χρησιμοποιούμε και χωρίς ριχτάρια;
Και δεύτερον, υπάρχει ένας τοίχος στην περιοχή της τραπεζαρίας μήκος 3,75μ. Τι έπιπλο να βάλω εκτός από σύνθεση; Η τραπεζαρία είναι ροτόντα κλασική. Το στιλ του σαλονιού το σκέφτομαι συνδυασμό κλασικού με μοντέρνες πινελιές. Ευχαριστώ πολύ.
Απάντηση από την Ε.Κ.
Τα κλασικά χαλιά είναι έργα τέχνης σαν τους πίνακες όπου δεν είναι απαραίτητο να συνδυάζουμε τα χρώματά τους.
Στη δική σας περίπτωση όπου θέλετε να συνδυάσετε το μοντέρνο με το κλασικό – όπου το βρίσκω πολύ εύστοχο και σύγχρονο – θα πρότεινα καναπέδες μονόχρωμους σε απλή τετράγωνη γραμμή (μοντέρνους) με ξύλινα ποδαράκια και όχι ανοξείδωτα σε μπεζ – γκρι απόχρωση όπως το φόντο του χαλιού.
Αυτές οι γραμμές είναι διαχρονικές και ταιριάζουν απόλυτα με κλασικά έπιπλα. Το ύφασμα μπορείτε να ζητήσετε «αλέκιαστο» και με τη δυνατότητα να βγαίνει και να πλένετε.
Όσο για τον τοίχο, χωρίς να ξέρω σε ποιο σημείο βρίσκεται, θα μπορούσε να μπει ένα χαμηλό έπιπλο 2μέτρων και να δεχτεί επάνω TV και στερεοφωνικά.
Ερώτηση από την Εύη
Ετοιμάζω κι εγώ το μελλοντικό μου σπίτι. Αυτό που με προβληματίζει πιο πολύ είναι το βάψιμο του σπιτιού. Όσο κι αν κοιτάζω τα χρωματολόγια (βεντάλιες) δε με βοηθούν καθόλου. Προτιμώ τις γήινες αποχρώσεις για το σαλόνι και το χρώμα της βανίλιας για το παιδικό (ως ουδέτερο χρώμα) αλλά για την κρεβατοκάμαρα και την κουζίνα έχω πλήρη μεσάνυχτα… Εσείς τι θα μου προτέινατε;
Ευχαριστώ εκ των προτέρων για τη βοήθεια σας.
Απάντηση από την Ε.Κ.
Στην κρεβατοκάμαρα (αν και δεν ξέρω τι έπιπλα έχεις) θα μπορούσες να χρησιμοποιήσεις το λαδί της ελιάς με λίγο ποιο σκούρο τον ένα τοίχο στο κεφαλάρι.
Για την κουζίνα εάν υποθέσω ότι είναι σε ξεχωριστό δωμάτιο χρειάζεται ένα φωτεινό χρώμα. Αυτό είναι σε συνδυασμό με τα ντουλάπια της κουζίνας ίσως και το λευκό.
Λυπάμαι αν δεν έχω συγκεκριμένες απαντήσεις αλλά μου λείπουν πληροφορίες.
Ερώτηση από την Ε.Χ.
Θα μπορούσατε να μου πείτε κάποιες ιδέες για τη διάταξη των επίπλων καθώς και για την επιλογή χαλιού (διαστάσεις, χρώμα ή/και σχέδιο) για ένα μικρό δωμάτιο, όπου θα μπει ένα γραφείο;
Οι διαστάσεις του δωματίου δίνονται στο συνημμένο αρχείο, όπου αποτυπώνεται και ο χώρος όπου είναι η ντουλάπα (διαστάσεων 1,80m x 0,60m). Στο δωμάτιο πρόκειται να τοποθετηθεί ένα γραφείο διαστάσεων 0,80m x 1,40m και μια βιβλιοθήκη διαστάσεων 0,35m x 1,00m. Οι τοίχοι του δωματίου είναι βαμμένοι σε ανοικτό πράσινο χρώμα ενώ το ταβάνι είναι λευκό. Το πάτωμα έχει ξύλινη επένδυση σε χρώμα wenge. Επίσης έχει γίνει επιλογή κουρτίνας σε χρώμα ανοικτό χακί.
Σας ευχαριστώ εκ των προτέρων για το χρόνο και τις συμβουλές σας.
Με εκτίμηση
Απάντηση από την Ειρήνη Κουρή
Για το χαλί μια καλή διάσταση είναι 2.00χ1.20 γιατί τα χαλιά δεν τα βάζουμε από τοίχο σε τοίχο όπως τις μοκέτες. Όσο για το χρώμα θα μπορούσε να είναι σε μπορντό αποχρώσεις, εάν είναι κλασικό σχέδιο για να δώσει λίγο χρώμα στο χώρο. (Δείτε παρακάτω – Κάτοψη 3).
Εάν σας αρέσουν τα μοντέρνα χαλιά τα οποία είναι πιο μονόχρωμα με μεγάλα σχέδια γεωμετρικά μπορεί να είναι σε χρυσές και μπεζ – καφέ αποχρώσεις ή σε ένα έντονο χρώμα συνδυασμένο στο χώρο με ένα διακοσμητικό στο ίδιο χρώμα (βάζο, φωτιστικό δαπέδου κ.ά.).
Ερώτηση από την Ευαγγελία
Καλημέρα, θα ήθελα παρακαλώ να με βοηθήσετε στη διακόσμηση του σαλονιου μου. Είναι μαύρο ξυρισμένο ριγέ βελούδο με κεντημένα μαξιλάρια με ασημί. Έχω μαύρα ξύλινα έπιπλα με κρύσταλλο και μπορντό ύφασμα στις καρέκλες της τραπεζαρίας (ενιαίος χώρος). Τι χρώμα χαλί του ταιριάζει και αν έχετε να μου προτείνετε πίνακες ζωγραφικής.
Σας ευχαριστώ και περιμένω τη βοήθειά σας.
Απάντηση από την Ειρήνη Κουρή
Eυαγγελία καλημέρα,
το χαλί εάν είναι με κλασικά σχέδια θα μπορούσε να είναι σε μπορντό αποχρώσεις και να φωτίσεις το χώρο.
Εάν σου αρέσουν τα μοντέρνα σχέδια θα μπορούσες να τοποθετήσεις ένα χαλί σε γκρι αποχρώσεις ή ακόμα και μονόχρωμο γκρι αυτά που έχουν μεγάλο τρίχωμα και ασημίζει λίγο το χρώμα τους. Αυτά μπορείς να τα βρεις και από μοκέτες για να σου στοιχίσουν πιο οικονομικά.
Όσο για τους πίνακες εξαρτάται από το στιλ των επίπλων και το στιλ των θεμάτων που σου αρέσουν.
Απέφυγε τα θέματα με πολύ μπορντό χρώμα γιατί θα είναι πολύ «σκοτεινή» η ατμόσφαιρα.
Ερώτηση από την Ε.Δ.
Εχω ενα σκοτεινο υπνοδωματιο στο σπιτι μου, οπου το φως που εχει ειναι διαχυτο φως, αφου βρισκεται στο πισω μερος της πολυκατοικιας, σε ενα ακαλυπτο χωρο.
Τι μπορω να κανω για να το φωτησω λιγακι, περα απο τα ανοιχτα χρωματα, φωτιστικα, καθρεπτες…
Μπορω να κανω ενα μερος του τοιχου με υαλοτουβλα; (εκει στον ακαλυπτο) η ειναι παρανομο;
Μπορω να κανω ενα μερος του τοιχου με υαλοτουβλα; (εκει στον διαδρομο, η στο χωλ);
Ευχαριστω εκ των προτερων για τη βοηθεια σας
Απάντηση από την Ειρήνη Κουρή
Εάν δεν είναι το κυρίως υπνοδωμάτιο μπορείς να γκρεμίσεις και τους δύο τοίχους του χολ να ενωθεί με το σαλόνι και να το χωρίζεις με ένα κινητό χώρισμα ή ένα παραβάν.
Η λύση του υαλότουβλου στο χολ ή στο διάδρομο δεν βοηθάει στην ιδιοτικότητα του χώρου, κάθε φορά που θα ανάβεις το φως θα σε βλέπουν.
Εφόσον μπορείς να γκρεμίσεις άνοιξε το παράθυρο και κάντο όλο τζαμαρία από πάνω (από το δοκάρι ή το ταβάνι) μέχρι το δάπεδο. Από το σχέδιο βλέπω ότι βγαίνει σε μπαλκόνι. Η λύση αυτή είναι πολύ ωραία μη τη φοβηθείς μπορείς να τοποθετήσεις ρόλερ συσκότισης και από πάνω κουρτίνες. Έξω από την τζαμαρία πολλά λουλούδια με μπαμπού καλάμια στα κάγκελα, οπότε δεν θα φαίνεται ο ακάλυπτος αλλά σαν αίθριο πολύ μοντέρνο.
Ερώτηση από την I.M.
Καλησπέρα σας,
Θα ήθελα να μου προτείνετε τρόπους διακόσμησης για το τζάκι.(βάψιμο ή ταπετσαρία κ.λπ.)
Είναι γωνιακό, η καμινάδα είναι κυλινδρική κατά κάποιο τρόπο(δεν έχει γωνίες δηλαδή) και είναι βαμμένο σε κρεμ-μπεζ απόχρωση το ίδιο με το υπολοιπο σπίτι. Βρίσκεται στο καθιστικό. Επίσης έχει επενδυθεί με πέτρα ανάγλυφη και μάρμαρο πάλι σε μπεζ απόχρωση. Οι κουρτίνες είναι σε μπορντώ απόχρωση ταφτα.
Έχω σκεφτεί κατά διαστήματα να το βάφαμε με κάποια τεχνοτροπία στη ίδια απόχρωση με τις κουρτίνες αλλά δεν ξέρω αν θα έχει καλό αποτέλεσμα.
Θα εκτιμούσα πολύ αν με συμβουλεύατε πάνω σ’αυτό το θέμα.
Ευχαριστώ εκ των προτέρων.
Απάντηση από την Ειρήνη Κουρή
Οι κουρτίνες από ταφτά σε μπορντό χρώμα, είναι ήδη ένα πολύ δυνατό στοιχείο στο χώρο το οποίο θα πρέπει να παραμείνει μόνο του και να το συμπληρώσετε με ένα διακοσμητικό σ αυτό το χρώμα.
Το τζάκι έχει δύναμη από μόνο του με το στοιχείο της καμπύλης στην καμινάδα και την επένδυση του μαρμάρου.
Γι’ αυτό θα πρότεινα μια ταπετσαρία σε λίγο ποιο σκούρο μπεζ από τον τοίχο ίσως παίρνοντας το χρώμα από τα σκούρα νερά του μαρμάρου.
Έτσι θα έχουμε ένα τζάκι επιβλητικό με χρώματα μπεζ – καφέ που είναι ποιο σύγχρονα και χωρίς να μας κουράζουν οι μεγάλες επιφάνειες του μπορντό.
Ερώτηση από τη Φωτεινή
Καλημερα ονομαζομαι Φωτεινη μενω στην Ροδο και αυτον τον καιρο κτιζω το σπιτι μου.
Δεν εχω την δυνατοτητα για αγορα καινουργιων επιπλων και προσπαθω να τοποθετησω τα επιπλα μου στο νεο χωρο. Το μεγαλο μου προβλημα ειναι στο σαλονι – εχω ενα μπουφε με τον καθρεφτη του περιπου 2 μετρα και ενα σαλονι αποτελουμενο απο ενα 3θεσιο ενα 2θεσιο και μια πολυθρονα.
Θα ηθελα επισης να μου δωσετε και μια λυση για τοποθετηση ιδανικων επιπλων για τον χωρο για οταν μπορεσω να προβω σε αγορα νεων επιπλων
Ευχαριστω!
Απάντηση από την Ειρήνη Κουρή
Φωτεινή καλησπέρα,
ο μπουφές σου με τον καθρέφτη θα μπορούσε να τοποθετηθεί δίπλα στην κουζίνα και όχι στο χωλ ή στο σαλόνι που έχουμε συνηθίσει. Αν είναι παλιό έπιπλο και το έχεις βαρεθεί μπορείς να το βάψεις μία λάκα σε έντονο χρώμα για ποιο μοντέρνο ή σε ένα γκρι-λαδί της ελιάς. Αυτό θα δώσει μια ποιο σύγχρονη νότα στο σπίτι. (Δείτε Κάτοψη 1).

Σε περίπτωση νέων επίπλων μπορείς να τοποθετήσεις έπιπλο πίσω από τον καναπέ (στο ύψος του καναπέ) με βιβλία ή ποτά καθώς επίσης και έπιπλο στον μεγάλο τοίχο χαμηλό για TV και στερεοφωνικά. Το σαλόνι μπορεί να συμπληρωθεί με δύο ωραιότατα πουφ.
Στο χολ δύο πολυθρόνες με ένα τραπεζάκι υποδέχονται με ζεστασιά τους καλεσμένους σου. (Δείτε Κάτοψη 2).

in.gr
- Η Μπαρτσελόνα χωρίς βιασύνη για μεταγραφές
- Greek Banks Set Holiday Schedule
- Άκουσε τα κάλαντα και έσυρε τον χορό ο Κουτσούμπας – «Η σκέψη μας είναι στους αγώνες εργατών και αγροτών»
- Στη Βραζιλία τρίβουν τα χέρια τους: O Ραγιάν ετοιμάζεται για πώληση-ρεκόρ
- Δεκατετράχρονη παρασύρθηκε από αυτοκίνητο ενώ έλεγε τα κάλαντα – Την εντόπισε τυχαία νοσηλεύτρια του Παίδων
- Ξεκίνησε το μεγάλο ταξίδι του Άη Βασίλη – Δορυφόροι παρακολουθούν την πορεία του
- Δέματα αγάπης σε άστεγους από την «Αποστολή»
- Στα σχοινιά ΕΠΟ και ΚΕΔ: Όλες οι αντιδράσεις για την χοντρή γκέλα με τον Λανουά
Ακολουθήστε το in.gr στο Google News και μάθετε πρώτοι όλες τις ειδήσεις






![Άκρως Ζωδιακό: Τα Do’s και Don’ts στα ζώδια σήμερα [Τετάρτη 24.12.2025]](https://www.in.gr/wp-content/uploads/2025/12/stephan-widua-ef5IgSRyFjo-unsplash-315x220.jpg)


























































Αριθμός Πιστοποίησης Μ.Η.Τ.232442