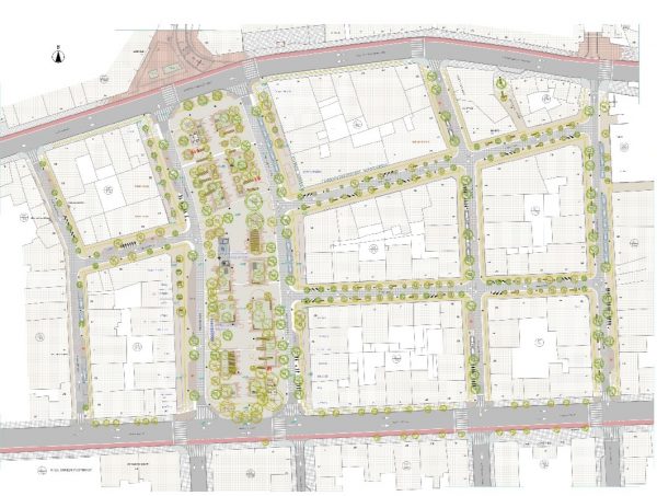
Έτσι θα είναι το εμπορικό κέντρο του Δήμου Χανίων μετά την ανάπλαση του
Οι εργασίες για την δημιουργία της νέας πλατείας 1866 και των εφαπτόμενων οδών στο Δήμο Χανίων προχωράνε και στη μακέτα που δόθηκε στη δημοσιότητα αποκαλύπτεται η μελλοντική της όψη.
Προχωράει το έργο για τη δημιουργία του νέου Ανοικτού Κέντρου Εμπορίου (Open Mall) από τον Δήμο Χανίων στην Πλατεία 1866, που περιλαμβάνει την ανάπλαση μιας μεγάλης περιοχής στον πυρήνα του εμπορικού κέντρου των Χανίων.
Σύμφωνα με τον σχεδιασμό, κι ενώ ήδη πραγματοποιούνται έργα από τον ΔΕΔΔΗΕ εντός της Πλατείας, το αμέσως επόμενο διάστημα πρόκειται να ξεκινήσουν οι εργασίες υπογειοποίησης όλων των δικτύων και η ριζική αναβάθμιση του αποχετευτικού και υδρευτικού δικτύου της Δ.Ε.Υ.Α.Χ., στην ευρύτερη περιοχή παρέμβασης.
Συγκεκριμένα, τη Δευτέρα 27 Μαρτίου 2023, θα ξεκινήσουν οι εργασίες της Δ.Ε.Υ.Α.Χ. από την οδό Καραΐσκάκη και θα επεκταθούν σε πρώτη φάση στις οδούς Μυλωνογιάννη, Κόρακα και Κριάρη, με κατεύθυνση προς την Πλατεία 1866.
Επίσης, στις 3 Απριλίου 2023, θα ξεκινήσουν οι εργασίες υπογειοποίησης του ΔΕΔΔΗΕ στους παραπάνω δρόμους αλλά και οι εργασίες πεζοδρόμησης.
Οι εργασίες θα εκτελούνται επί του οδοστρώματος και μετά την περάτωση τους ο δρόμος θα δίνεται και πάλι στην κυκλοφορία. Το αμέσως επόμενο διάστημα, θα εκδοθούν οι σχετικές αποφάσεις για παρεμπόδισης της κυκλοφορίας και κλεισίματος των συγκεκριμένων οδών.

Πηγή: Δήμος Χανίων
- Η Μπάγερν δίνει νέο συμβόλαιο στον Χάρι Κέιν
- Παγκράτι: «Άρχισε να με κλωτσάει, να με χτυπάει» – Τι λέει η 23χρονη που δέχθηκε επίθεση για μια θέση πάρκινγκ
- Μίλαν: Χάνει το υπόλοιπο της σεζόν ο Λούκα Μόντριτς
- Σε σχηματισμό μετώπου «εμπόδιο στην παρακμή» καλεί ο Ανδρουλάκης – Η απάντηση του προέδρου του ΠΑΣΟΚ στο in
- Tα κορίτσια της Γάζας γιατρεύουν τα τραύματα τους με πυγμαχία
- Αποθέωση στο Ηράκλειο από χιλιάδες οπαδούς του ΟΦΗ στη φιέστα για την κατάκτηση του Κυπέλλου (vids)
- Βούλα: Τέσσερις συλλήψεις σε γνωστό κατάστημα για παράνομο πάρκινγκ με αμοιβή σε δημόσιους χώρους
- Fuel Pass: Πότε εκπνέει η προθεσμία για την υποβολή της αίτησης
Ακολουθήστε το in.gr στο Google News και μάθετε πρώτοι όλες τις ειδήσεις







![Άκρως Ζωδιακό: Τα Do’s και Don’ts στα ζώδια σήμερα [Δευτέρα 27.04.2026]](https://www.in.gr/wp-content/uploads/2026/04/anthony-E4SigA-v5l4-unsplash-315x220.jpg)



































































Αριθμός Πιστοποίησης Μ.Η.Τ.232442